• Byggmann

204 – HOVDEN

STILREN MODERNE

Velkommen til Hovden – en moderne bolig med rene linjer, funksjonalitet og tidløs estetikk. De store vindusflatene gir rikelig lys og en innbydende atmosfære.

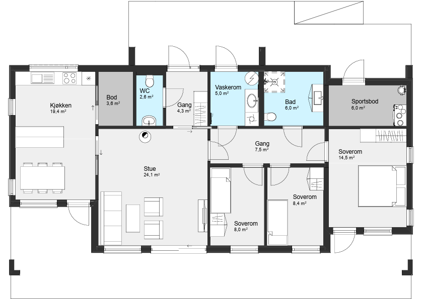
Alt ligger på ett plan: tre romslige soverom, bad og WC, praktiske boder, og en åpen stue med moderne kjøkken. Fra stua går du rett ut på terrassen, noe som gjør det enkelt å nyte uteplassen store deler av året.

Med Hovden får du en bolig som dekker både hverdagens behov og sosiale sammenhenger, perfekt for både småbarnsfamilier og voksne som ønsker seg en lettstelt og oversiktlig bolig.

TEKNISK DATA

Bruksareal: 116,6 m²
Bebygd areal: 152,4 m²
Største lengde: 9,8 m
Største bredde: 17,4 m
Antall soverom: 3
Energimerking: Oransje - B

Innenfor arealgrensen til Husbanken

PLANTEGNINGER

FASADE

ØNSKER DU MER INFORMASJON?

FYLL UT SKJEMAET, SÅ KONTAKTER VI DEG FOR EN HYGGELIG BOLIGPRAT

    ARKITEKT

    ALT KAN TILPASSES FOR Å IMØTEKOMME DERES ØNSKER OG BEHOV

    Fordelene med å bygge et helt nytt hus, er at du kan få det akkurat slik som du vil. Trolig finner du en husmodell i vår katalog som kan passe, men kanskje ønsker du å tilpasse boligen etter egne ønsker og behov.

    Vi vil gjøre vårt ytterste for at du skal bli fornøyd, og hjelper deg hele veien fra idé til ferdig bolig. Vi har fagkunnskap og gir gode råd for at du skal få bygget en bolig som passer deg helt perfekt.»

    Trykk her for å lese mer om arkitekttjenester fra Byggmann.