Gå til: Plantegning | Fasade | Kontaktskjema
1108 – Flermannsbolig
Klassisk og arealeffektiv flermannsbolig
Klassisk og arealeffektiv flermannsbolig
Bolig 1108 er en firemannsbolig fordelt på to etasjer. Fasaden har et klassisk uttrykk, med moderne detaljer. En kompakt bolig med det man trenger.
Tilgjengelig bolig. Gjelder kun enhetene på bakkeplan.
TEKNISK DATA
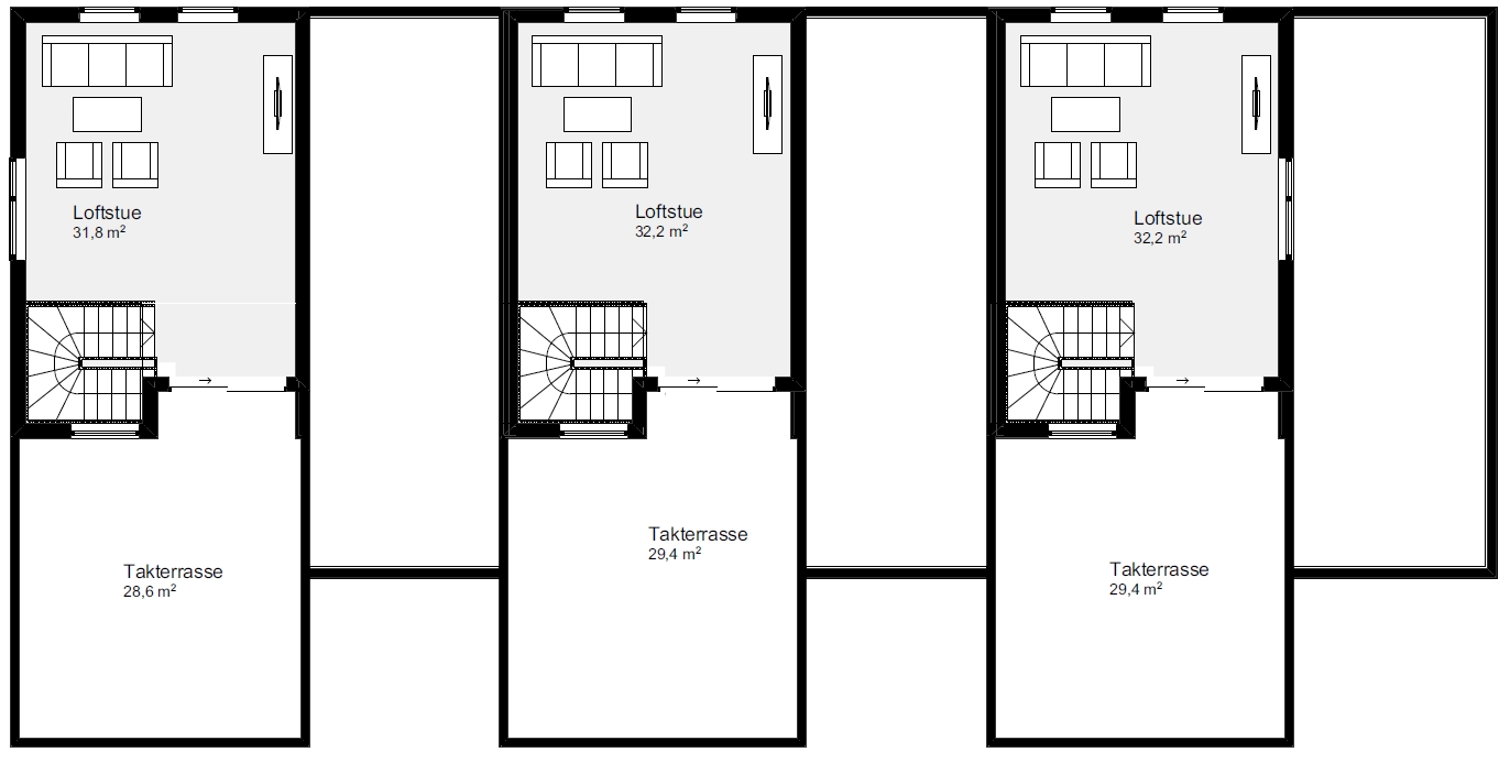
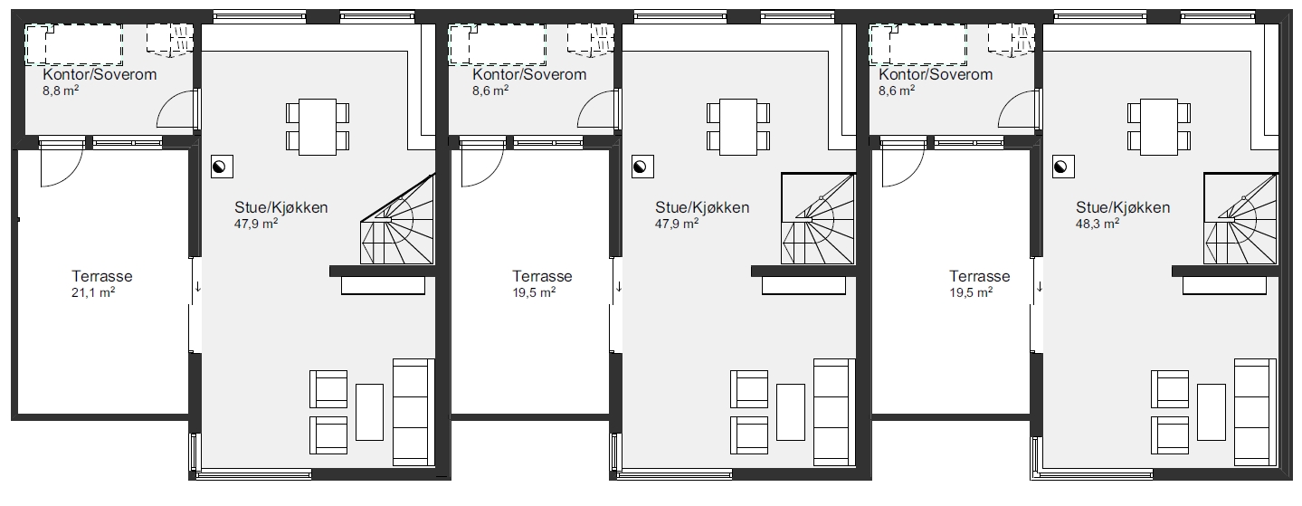
PLANTEGNING
ØNSKER DU MER INFORMASJON?
FYLL UT SKJEMAET, SÅ KONTAKTER VI DEG FOR EN HYGGELIG BOLIGPRAT
ARKITEKT
ALT KAN TILPASSES FOR Å IMØTEKOMME DERES ØNSKER OG BEHOV
Fordelene med å bygge et helt nytt hus, er at du kan få det akkurat slik som du vil. Trolig finner du en husmodell i vår katalog som kan passe, men kanskje ønsker du å tilpasse boligen etter egne ønsker og behov.
Vi vil gjøre vårt ytterste for at du skal bli fornøyd, og hjelper deg hele veien fra idé til ferdig bolig. Vi har fagkunnskap og gir gode råd for at du skal få bygget en bolig som passer deg helt perfekt.»







