Gå til: Plantegning | Fasade | Kontaktskjema
1103 – Flermannsbolig
Romslig tomannsbolig med stor terrasse
Bolig 1103 er en vertikaldelt tomannsbolig som egner seg for skrå tomter. Det er to soverom i første etasje og ett soverom/TV stue andre etasje. Fra kjøkkenet har du tilgang til en stor veranda på nesten 30m2. Boligen har egen carport, sportsbod og inngangsparti som er plassert under veranda. Noe som gir god skjerming mot vær og vind ved boligens inngangsparti.
TEKNISK DATA
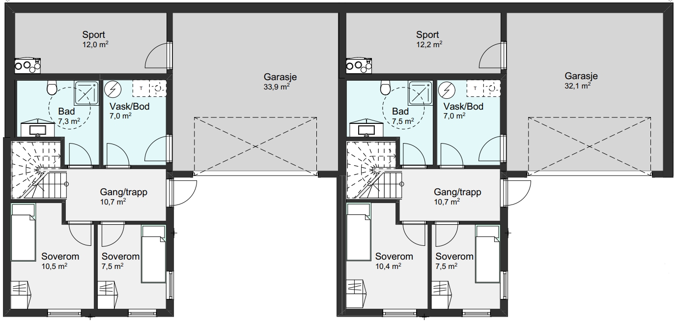
PLANTEGNING
ØNSKER DU MER INFORMASJON?
FYLL UT SKJEMAET, SÅ KONTAKTER VI DEG FOR EN HYGGELIG BOLIGPRAT
ARKITEKT
ALT KAN TILPASSES FOR Å IMØTEKOMME DERES ØNSKER OG BEHOV
Fordelene med å bygge et helt nytt hus, er at du kan få det akkurat slik som du vil. Trolig finner du en husmodell i vår katalog som kan passe, men kanskje ønsker du å tilpasse boligen etter egne ønsker og behov.
Vi vil gjøre vårt ytterste for at du skal bli fornøyd, og hjelper deg hele veien fra idé til ferdig bolig. Vi har fagkunnskap og gir gode råd for at du skal få bygget en bolig som passer deg helt perfekt.»





